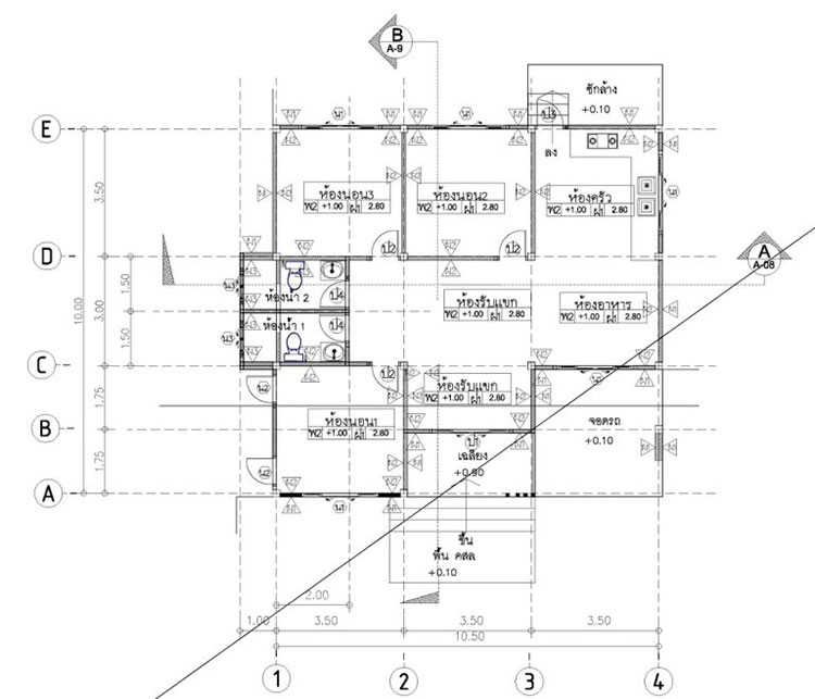
บ้านชั้นเดี่ยวสไตล์โมเดิร์น ขนาด 3 ห้องนอน 2 ห้องน้ำ 1ห้องครัว พร้อมห้องทานอาหาร

บ้านชั้นเดี่ยวสไตล์โมเดิร์น
สวัสดีครับ วันนี้เรามีบ้านสวยๆ สไตล์ทโมเดิร์นสวยๆ มาฝากกันอีกเช่นเคย สำหรับบ้านหลังนี้ การปลูกสร้างเป็นบ้านพักอาศัยชั้นเดียว ยกพื้นสูงจากที่ดินเล็กน้อย ประมาณ 40 ซม. การออกแบบบ้านสไตล์โมเดิร์น หลังคาเพิงแหงน ซ้อนกัน

เมื่อเข้ามาในบ้านจะพบกับห้องนั่งเล่นที่กว้างขวาง ห่างจากห้องนั่งเล่นเพียงไม่กี่ก้าวจะเป็นพื้นที่รับประทานอาหารและห้องครัว พื้นที่เหล่านี้รวมกันซึ่งช่วยเพิ่มพื้นที่ให้สูงสุด
รายละเอียด
- 3 ห้องนอน
- 1 ห้องพระ
- 2 ห้องน้ำ
- ห้องนั่งเล่น
- ห้องครัวและห้องทานอาหาร
- ระเบียง



ขอขอบคุณข้อมูลและภาพประกอบจาก : https://www.houseanddecors.com
หมายเหตุ : ทางเพจไม่ได้รับสร้างบ้านนะคะ เราลงให้ดูเป็นไอเดียเท่านั้น หากสนใจแบบบ้านที่รีวิว สามารถติดต่อเจ้าของผลงานโดยตรงเองได้เลย ส่วนราคาก่อสร้าง ขึ้นอยู่กับสถานที่ พื้นที่ก่อสร้าง และ เกรดวัสดุ ซึ่งมีปรับขึ้น-ลงทุกปีครับ
บทความอื่นที่น่าสนใจ



